产品中心
产品说明
产品图片
![]() | ![]() |
![]() | ![]() |
产品简介
在化学反应过程中,利用催化剂降低燃烧温度,加速有毒有害气体完全氧化的方法,叫做催化燃烧法。由于催化剂的载体是由多孔材料制作的,具有较大的比表面积和合适的孔径,当加热到300~450℃的有机气体通过催化层时,氧和有机气体被吸附在多孔材料表层的催化剂上,增加了氧和有机气体接触碰撞的机会,提高了活性,使有机气体与氧产生剧烈的化学反应而生成CO2和H2O,同时产生热量,从而使得有机气体变成无毒无害气体。
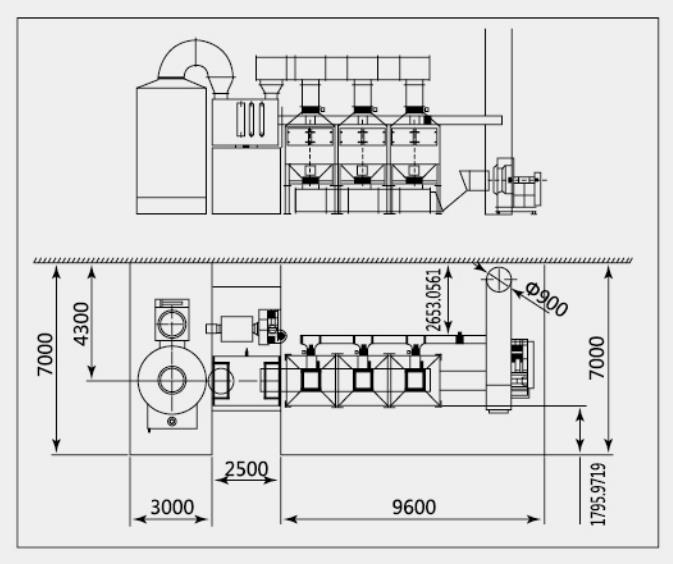
催化燃烧装置主要由热交换器、燃烧室、催化反应器、热回收系统和净化烟气的排放烟囱等部分组成,如右图所示。其净化原理是:未净化气体在进入燃烧室以前,先经过热交换器被预热后送至燃烧室,在燃烧室内达到所要求的反应温度,氧化反应在催化反应器中进行,净化后烟气经热交换器释放出部分热量,再由烟囱排入大气。
净化技术原理示意图

催化燃烧装置考虑以下几方面问题
1、气流和温度均匀分布。要使通过催化剂表面的气流和温度分布均匀,并保证火焰不直接接触催化剂表面,燃烧室必需具有足够的长度和空间。催化燃烧装置应具有良好的保温效果。炉体一般用钢结构的外壳内衬耐火材料,或用双层夹墙结构。
2、便于清洗和更换。催化剂反应器一般应设计成装卸方便的模屉结构,便于清洗和更换催化剂载体。
3、辅助燃料和助燃。催化燃烧一般采用天然气作辅助燃料,也可用燃料油、电加热等作辅助燃料。助燃一般用净化后的气体,如果净化后的气体不能作为助燃,则应引入空气助燃。
4、较高的转化速度。由于催化燃烧为不可逆的放热反应,所以,无论反应进行到什么阶段,都应在尽可能高的温度下进行,以获得较高的转化速度。但操作温度往往受某些条件的限制,如催化剂的耐热温度、高温材料的获得,热能的供应,以及是否伴有副反应等。因而实际生产中应根据实际情况恰当地选择。
催化燃烧应用
催化燃烧适用于含有可燃气体、蒸气等有毒有害气体的净化,但对于含有大量尘粒、雾滴等有毒有害气体,容易引起催化床层的堵塞,使催化活性下降,从而降低净化效率。催化燃烧净化方法,几乎适用于所有排放烃类或有臭味化合物的工业生产过程。
- 上一篇:UV光氧活性炭一体机
- 下一篇:暂无




